Heigou Xiong

A Taiwanese Tea–Based Cocktail Bar in Chengdu

Designed by Office AIO, Heigou Xiong, the first shop for a newly established brand specialising in Taiwanese tea–based cocktails. Heigou Xiong’s straight translation is “Brother Black Dog”, a Taiwanese slang referring to someone who is a hipster with a swag. Each of the cocktails on their menu is infused with a tea-based narrative, blending traditional brews with contemporary mixology to create a sensory experience that is both nostalgic and inventive.

Located within the podium of a mix-use commercial tower in the heart of Chengdu, the project positions itself as a night-time cocktail bar informed by tea culture through spatial order, atmosphere, and patterns of social interaction.

A Humble and Curious Exterior Design

The site was previously occupied by a coffee shop, the exterior façade opens to the bustling city street, while the opposite faces the mall interior. The 120sqm ground level space has a generous 6m ceiling height with a pre-existing partial attic. Taking the advantage of the tall exterior exposure, the façade design respectfully echoes the division lines of the existing commercial architecture, but expressed in hot-rolled steel sheets with a gradual transition announcing a subtle three-dimensionality to the otherwise homogeneous mall exterior. At nightfall, the façade glow softly to evoke a sense of curiosity and invitation.

Clarity in Spatial Order and Sequence

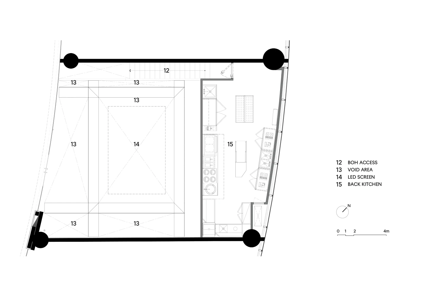
Entry into the space is deliberately compressed. A centrally positioned bar, located directly beneath the service kitchen above, organises circulation and establishes a clear division between the entrance zone and the seating area beyond. As guests move inward, change in ceiling height and spatial density guide movement toward a more inward-facing social core.

Rooted in Taiwanese hospitality culture, a bar counter is devised to prioritise human connection. It greets the guests upon entrance and guides the circulation towards the open seating area. Two hidden modular bar carts can be detached from the counter’s short end. The mobile cocktail carts can be rolled freely across the space, introducing movement and allowing the presence of mixologists to extend beyond the bar, encouraging genuine and tailored interactions. Thus, organically enables the space to subtly recompose itself over the course of an evening.

Inspired by the domestic spatial logic of southern Chinese living, the seating layout centers around a square-shaped court, wrapped by blackened steel awnings that rise dramatically into the tall ceiling space. This spatial gesture creates senses of both openness and intimacy, reminiscent of gathering under shaded canopies in a serene garden setting.

This inner court is capped by a floating LED detached from all four sides, conceived as an atmospheric surrogate for an animated sky, enabling changes in ambience through abstract or environmental imagery, supporting daily operation as well as occasional private events.

Material Language and Atmosphere

Designed explicitly for night-time operation, the space resists full daytime legibility. Transparency is deliberately limited in favour of inward focus, controlled illumination, and atmosphere, reinforcing the bar’s identity as a nocturnal social setting rather than a visual extension of the street.

Material choices are intentionally restrained yet layered. Hot-rolled steel sheets are laid horizontally along the faces of the awnings, though flat, the uneven scale markings are oriented downwards to emulate a dampened shiplap roof. The walls are cladded with black-stained chipboards to create a soft and almost shimmering effect with its tea-leaf-like texture.

Chequer-pattern terrazzo flooring recalls materiality common to Taiwan during the Minguo period, an era marked by cultural transition and the blending of local and global influences. These are paired with traditional Luohan couch, valued for their unique proportion suitable for both sitting and lounging, and Chandigarh-style chairs referencing a lineage shaped by cross-cultural exchange.

The palette leans toward darker, earthy tones, allowing materials to absorb light and reveal texture over time. Lighting is predominantly indirect and concealed, shaping atmosphere and spatial hierarchy, while the soft ambient glow from the lanterns beneath the “awnings evokes the gentle illumination of old teahouses, casting warm pools of light that invite guests to linger and converse. Upholstered seating and absorptive wall finishes contribute to an acoustically softened environment, supporting conversation-scale intimacy.

Reframing the Tea-cocktail House

Heigou Xiong does not attempt to define Taiwanese tea culture through narrative or symbolism. Instead, it focuses on how people gather, linger, and interact. Through a clearly articulated spatial order, calibrated material restraint, and a programme centred on social exchange, the project draws from a relaxed tea-drinking spatial memory to shape a contemporary night-time cocktail bar — one defined by atmosphere, order, and shared experience.

Read moreRead less
  • Heigou Xiong
  • Heigou Xiong
Next project UDL Studios 798