Grid Coffee

Office AIO为Grid Coffee苏州店带来古今融合的空间体验

在 Grid Coffee 筹备苏州首家旗舰店的过程,Office AIO 参与致力为它打造一个与众不同的空间,让它不仅是踏入这座城市,更愿融入苏州咖啡爱好者的社群。

苏州文化底蕴与品牌美学的交织

纵观历史,苏州一直是经济和政治权威的 “大都会”,与美丽而富有诗意的地理特征一起,形成了丰富的文化内涵。 Office AIO 的设计理念是与 Grid Coffee 时尚、与专业的品牌美学和态度保持一致,将这份成熟的品牌气质与本土化相融合,为店内体验增添丰富。

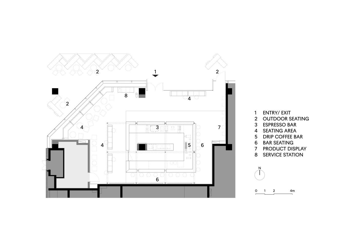
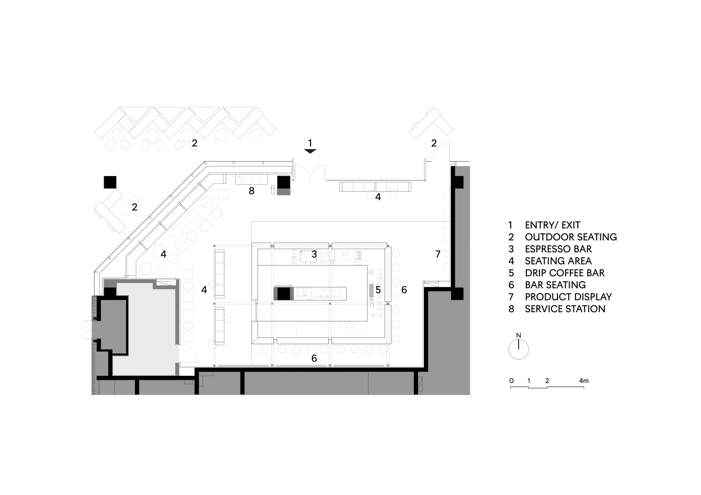
拥有充裕的164平方米空间、极具优势地面向商场的入口广场,其落地玻璃幕墙店面内,一个高雅而朴实的结构系统,轻盈地落在地面。 这个略被架高的中央吧台系统为一组铝制的框架构成,抽象地渲染了苏州传统的阶梯式屋顶,微缩成一座精致物件在室内空间里产生新的互动。 中央吧台不仅能提供 Grid 著名的意式浓缩咖啡,更重要的是能为其新推出的 “free-flow drip-coffee tasting menus” 提供一个能舒适并能专注享用咖啡风味的环境。

设计细节尽显创新构思

贯穿了 Grid 空间美学系统的胡桃木内饰,优雅地勾勒出钢结构框架,突显建筑轮廓,从外部观望时尽显独特魅力。这一背景与Grid的简洁品牌身份和谐共鸣,而对比鲜明的深色疯狂铺设的玄武岩或板岩地面,让人联想到精致园林小径,进一步区隔了吧台区与其他室内空间。这种材料的选择不仅增强了视觉吸引力,还搭建了传统与现代元素之间的桥梁,将空间转化为不仅仅是一家咖啡店,而是一个文化聚集地。

室内外与自然的和谐共鸣

室内和室外座位的设计以一个整体为考量,从吧台向外自由地扩散开。 从苏州花园里湖边栏杆汲取灵感,定制设计了一套带有舒适细节的花岗岩长凳, 形成室内外大部分固定座位。 与长凳形成一体的绿植槽为环境注入自然气息,同时也为座位区提供一定的私密性。

旗舰店的设计灵感来源于古典园林元素以及中国传统建筑和景观设计的特点和纹理,是对传统美学和形式的提炼,并以现代方式进行了诠释。

更多收起
  • Grid Coffee
  • Grid Coffee
  • Grid Coffee
下一个 Nodi