莱得快重庆粉面公司

重庆老城区十八梯的梦幻面馆

我们的客户是从重庆发源,并拥有1000多家分店的知名快餐连锁品牌,在川渝地区以各大城镇提供正宗、快捷的餐饮解决方案而闻名,通过不断升级菜单和店面形象来保持市场竞争力。此次品牌计划在一处历史街区打造独一无二的门店,旨在通过提供全新的用餐体验来吸引新顾客,同时让忠实的老顾客感到惊喜,从而确立其在美食界的地标地位。

用现代视野重塑传统:

项目位于重庆十八梯历史景点的一条小巷内,这里是连接城市上下城区的一条400米长的梯道,共有200多级台阶。由于靠近水源,这片区域成为最早的民居聚集区,并在2021年进行了商业改造,保留了原有的街道布局和建筑风格与规模。这种传统与现代的融合为我们的设计提供了理想的环境,旨在创造一种梦幻般的用餐体验。

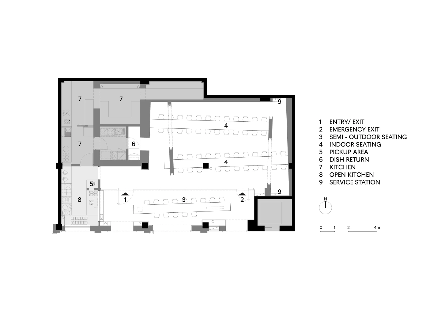
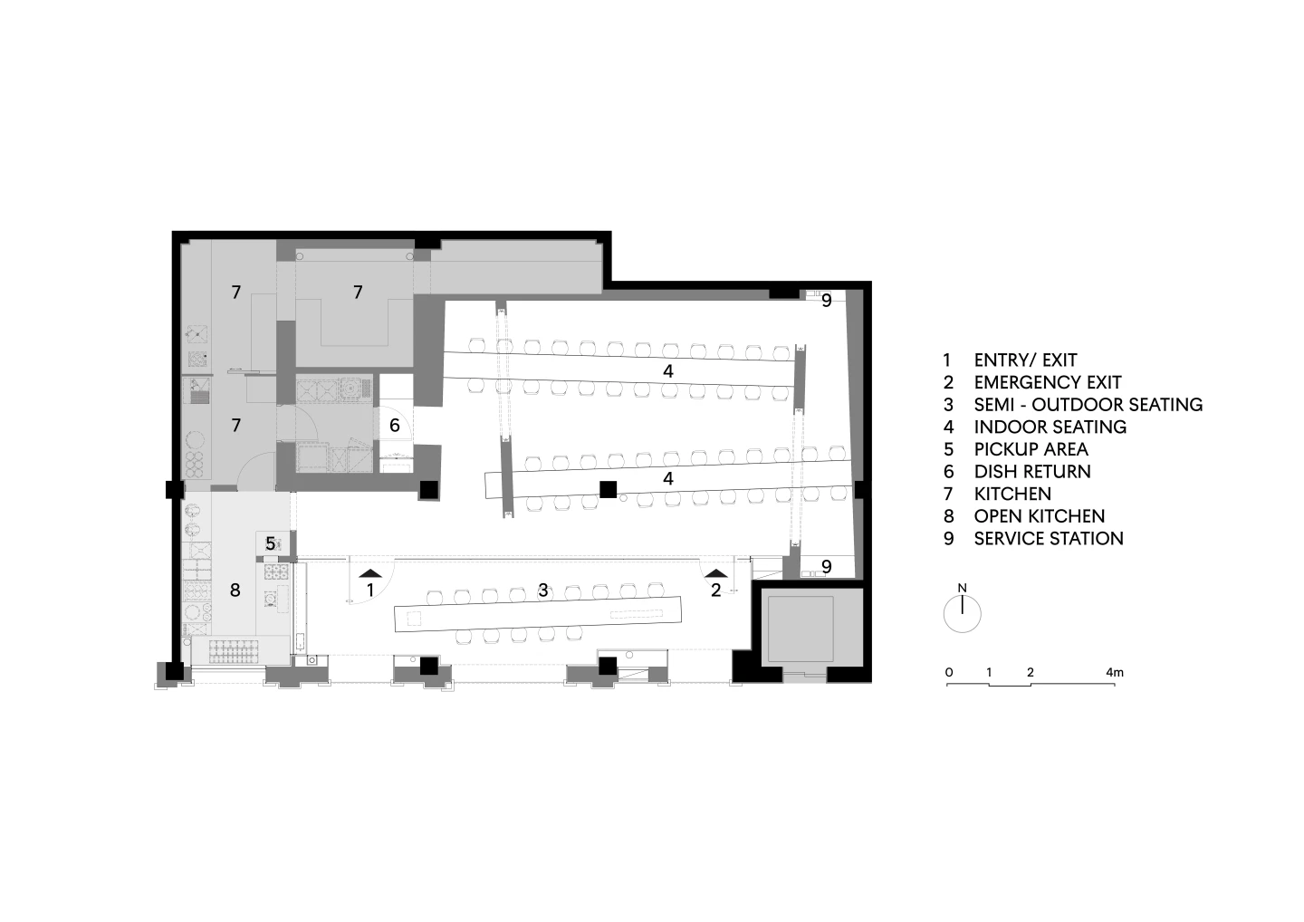
餐厅位于一座四层高建筑的底层,开发商将其外立面设计成四个独立造型的联排屋,因此餐厅有四个不同的开口朝向主要小巷。联排屋外立面的背后是一个整体且开放的内部空间,允许灵活的空间规划。

由于必须保留外立面的造型,设计师将"立面"的概念推向建筑内部,通过后置“外立面”的设计,创造出一个半公共区域,并将其重新描绘成品牌标志性的暖红色。这个区域可用于小憩、外卖取餐或户外遮蔽式就餐。通过原有的分割式穿墙窗,这个缓冲区在砖立面上营造出独特的空间体量感。

捕捉城市灵感定义空间:

以重庆在90年代快速城市化过程中形成的“万能”精神和品质为灵感,餐厅内竖立了几面通高墙和两个抽象的长形公共餐桌。这些精心定位的墙体各有一个开口,形成餐桌延伸的通道,并通过镜面进一步夸大其线性效果。正如以超现实“桥穿高楼”场景闻名的李子坝轻轨站,这种夸张却又朴实的体验正是重庆独特之处。

这些戏剧性的桌子长度分别为9米和12米,轻盈地悬浮在餐厅内。定制的白色方格加红色轮廓的富美佳层压板覆盖了这些穿过空间的台面。选用了Wastberg 'Sempe'吊灯,其造型类似中国各地常见的"大排档"风格红色吊灯,精心布置并悬挂在长桌上方,营造出典雅细腻的氛围。

通过合作展现品牌精神:

最内侧的墙体采用拉丝铝板包裹,能够反射来自宽大的有色玻璃、吊灯和人们在空间内流动的光线。就像看着一列移动的火车,场景在运动模糊中不断渲染,唤起了一种动态感。

Office AIO与视觉设计师T-Workshop合作,将品牌术语和菜单项目转化为一系列反映城市街头文化与活力的墙面涂鸦,非常适合面向游客的场所。在Office AIO的指导下,这些涂鸦墙采用渐变方式呈现,描绘出重庆著名的雾景。这些涂鸦与空间氛围相得益彰,而书法字体则更多地表达了品牌的诗意,以更个人化的方式产生共鸣。

最终的设计呈现出一个大胆沉浸式的用餐体验,充分彰显了重庆独特的文化与历史底蕴。通过提供独特的菜单和清新的休闲用餐环境,这家旗舰店展示了品牌在各个层面的实力。Office AIO将运营功能与氛围设计完美融合,不仅吸引游客,更将这里打造成一个充满活力的社区中心,重塑品牌形象,使其成为重庆必游的打卡地标。

更多收起
  • 莱得快重庆粉面公司
  • 莱得快重庆粉面公司
下一个 Grid Coffee