Nodi

为“大堂咖啡吧”注入新的篇章

由香港丰富的咖啡文化孕育而成的品牌Nodi,在上海繁忙的静安嘉里中心呈现了其最新创意。Nodi这个名字源自拉丁语:“结”,象征着人与人、地点与地点之间的连接,以及对咖啡的热情。这个年轻的精品咖啡品牌通过享用咖啡的简单行为,转化为促进人际互动和创造力的渠道,为自己在市场上创造了一席之地。

随着它在大中华区的首次亮相,Nodi的首家店铺坐落在高端的静安嘉里中心办公楼内—这里常有时尚编辑、银行家和各界专业人士光顾。在Blue Bottle、%Arabica、Fuel和Starbucks Reserve等巨头的包围下,Nodi为咖啡体验引入了一种全新的见解。
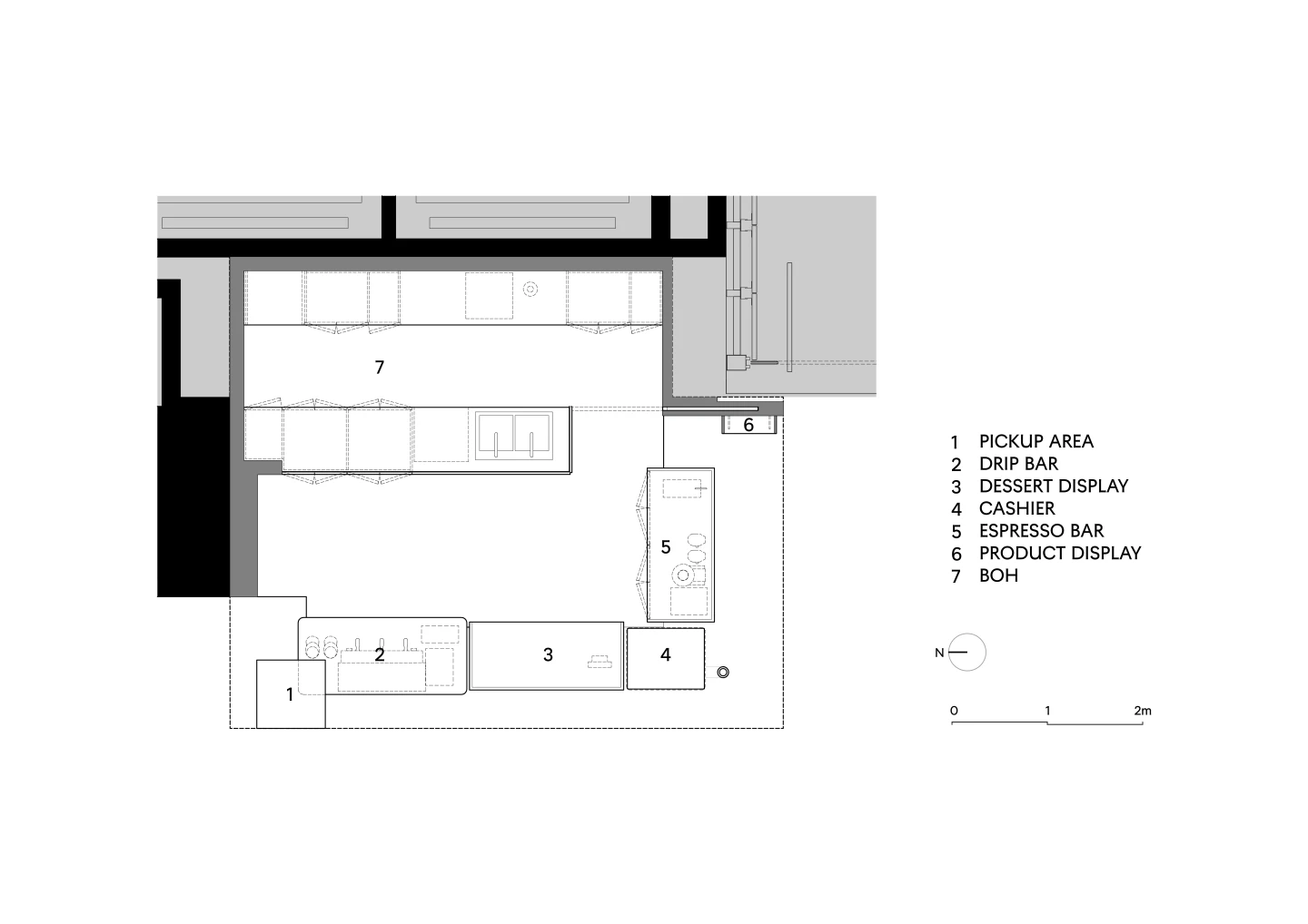
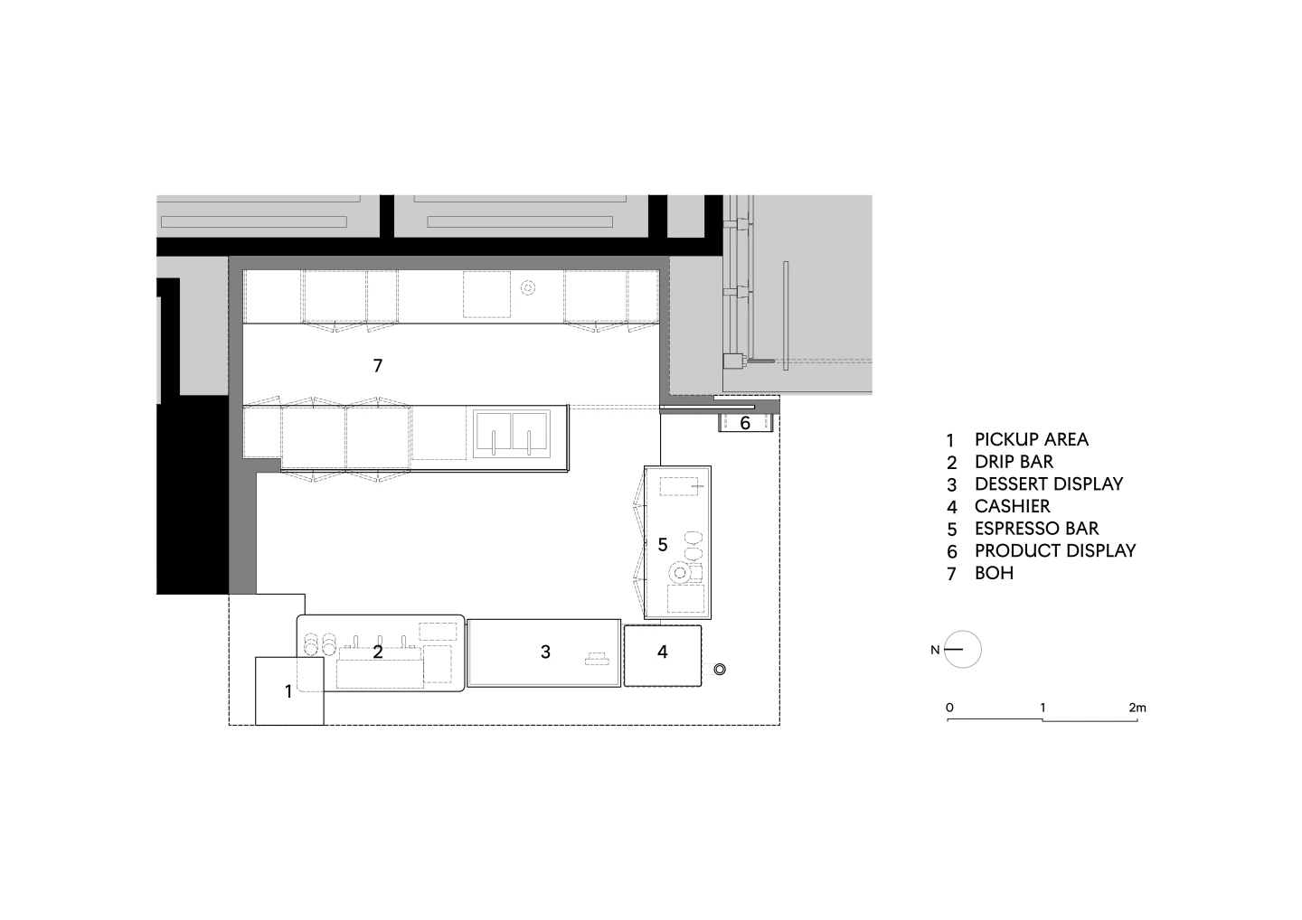
Nodi店铺占据嘉里中心办公楼12米高的大堂一角,并精心划分出三个区域:咖啡吧台、室内座位区和一个向南的室外庭院,这个户外座位区远离了繁忙的街道,也带领人们通往嘉里中心的商场入口。

反映Nodi品牌价值观——灵感赋予、多样性、活力表达和成熟的规划,Office AIO以一个亭式结构的方式,在开敞的大堂里体现了有趣且充满细节的呈现。

实现高效与品牌信仰的完美结合

咖啡吧台被进一步划分为前场和后勤两个区块,旨在确保咖啡制作区域优雅且整洁的同时,实现专业的高效运作。在这两个部分之间,团队从传统中国屏风中汲取灵感,创造了一种既提供隐私又保持透明度的隔断。这个格子状的木制隔断乍看平凡,但近看可以发现由品牌字母“n”所构成的图案,增添了丰富性和微妙性。并在后勤区的背墙,安装了与屏风协作的灯箱元素,暖色调的灯光为咖啡师提供了柔和的照明,也映出了咖啡师忙碌的剪影。

考虑到大堂咖啡吧日常的接待量,前吧台采用了经典的L形配置,同时期望为它注入独特的风格和体验:吧台内的每个功能都以独立的模块表现,每个模块有着自己的形状与细节,丰富了传统的单一造型吧台,展现出活力和趣味,强化了品牌的俏皮而精致的理念。

定制单品塑造场景一体化

座位安排提供了多样化的选择,包括HAY品牌的座椅和由Office AIO为此项目定制的桌椅,可容纳不同形式的聚集。通过纹理丰富的绿色大理石(Persian Green Marble)和深绿色木饰面与吧台区的材料组合产生互动,尽管地板的材料不容许更改,也达到了统一品牌空间感的目的。

一个特别有创意的动作是商场入口处的超大尺寸结绳装置,兼作室外座位,以俏皮的方式回应Nodi的品牌含义。由Office AIO精心打造,使用真实的绳子捕捉结的自然形态,然后按照符合人体工学的尺寸进行放大调整。携手比利时品牌Sixinch - 以其独特弹力涂层技术的泡绵产品而知名 - 打造这一套室外座椅。这个结绳装置不仅在视觉上引人注目,而且耐用兼多功能,完美封装了Nodi的根源和其促进交流的承诺。

随着Nodi在上海扎根,它带着成为不仅仅是一个咖啡品牌的雄心壮志。它是灵感的避风港,创意的熔炉,也是Nodi通过咖啡这一普遍语言连接人们旅程的新篇章。

更多收起
  • Nodi
  • Nodi
  • Nodi
下一个 胖妹面庄 - 隆福寺店