Tanway

Office AIO Crafts a Heartfelt “Round the Fire” Experience for a Japanese Gyu-Kaku

For the yakiniku restaurant Tanway, which translates to “around, charcoal”, Office AIO has created a culinary experience that embraces the essence of gathering around a fire. It evokes imagery of patrons seated around flickering flame, creating special connection with food and fellow diners in intimate environment.

From “meat-slicing” to frames of moments

Situated alongside the street, Tanway provides captivating glimpse into its spacious interior through a full-length floor-to-ceiling glass.

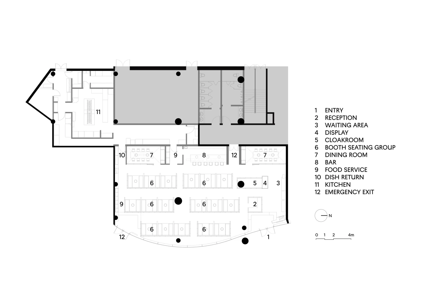
Dominating volumes take centre stage inside the restaurant. The blocks are meticulously arranged to establish a sense of order, separating traffic aisles and dining areas. The layout promotes efficient service flow while also creating semi-private enclosed dining areas. Coal black laminates and polished red tiles flooring serve as visual echo of the core elements of the dining experience, “charcoal” and “fire”. The combination of these materials crafts a mysterious and striking space that perfectly balance warmth and coolness.

Like a blade slicing through a steak revealing juicy pink flesh, the design severs the volumes horizontally, leaving charming gaps in between the halved blocks. These gaps form frames that display the ephemeral moments in the bustling establishment, much like moving scenes in a movie. They capture smoke curling out of the grill and of people grinning as they savour delicious bites.

Juxtaposing materials for warmth and sophistication

Drawing inspiration from humble woodshed, Office AIO incorporates wood as the primary material for the dining blocks. Despite their charcoal black colour, the matte paint on the exterior subtly reveals the natural wood grains. The interior, on the other hand, retains the original warm wooden colour for tabletops and seats, fostering a cozy and inviting atmosphere that encourages meaningful connection between friends and family.

The top blocks above the tables shape like inverted cones and feature bold chiseled panels. Light source is hidden at the top, illuminate the food directly below with focus while bouncing off intricate reflections on the ceiling, adding rustic textures to the space.

Office AIO skillfully crafts a heartfelt dining experience within a deep and elegant setting. The thoughtful play of volume and materials, touches upon the restaurant’s brand and specialty, and transports diners to a realm that surpasses the mere act of eating meat, a place where the simple but elemental joy of cooking and eating around fire together are elevated to new heights.

Read moreRead less
  • Tanway
Next project Pageone