熊鱼食社

熊鱼食社是正大集团(CP Group)重点孵化的全新C端食品类社交化电商平台,通过尖端技术应用,为中国市场年轻一代消费群体提供方便与品质兼得的第三种”吃饭解决方案”。

「熊鱼食社」是正大集团重点孵化的一个全新的食品电商平台。品牌名称出自孟子的《鱼我所欲也》:“鱼,我所欲也,熊掌亦我所欲也;二者不可得兼,舍鱼而取熊掌者也。” 借助正大集团完整的食物供应链、中央烹饪机制、和具专利的保鲜包装科技应用,为中国市场年轻一代消费群体提供健康、美味、并可在常温状态下长时间储屯的预包装食品。

「熊鱼食社」的首家线下体验餐厅,选址在品牌目标客户人群 - 具传播力和消费力的年轻白领 - 集中的望京Soho。Office AIO在此的设计意图不仅是创造可完整传递品牌核心价值 - 提供方便与品质兼得的吃饭解决方案 - 的实体空间;更加重要的,在繁忙的办公环境内,营造一个具丰富社区感的社交空间氛围。

为“速食”的预备工作设计一个展示舞台

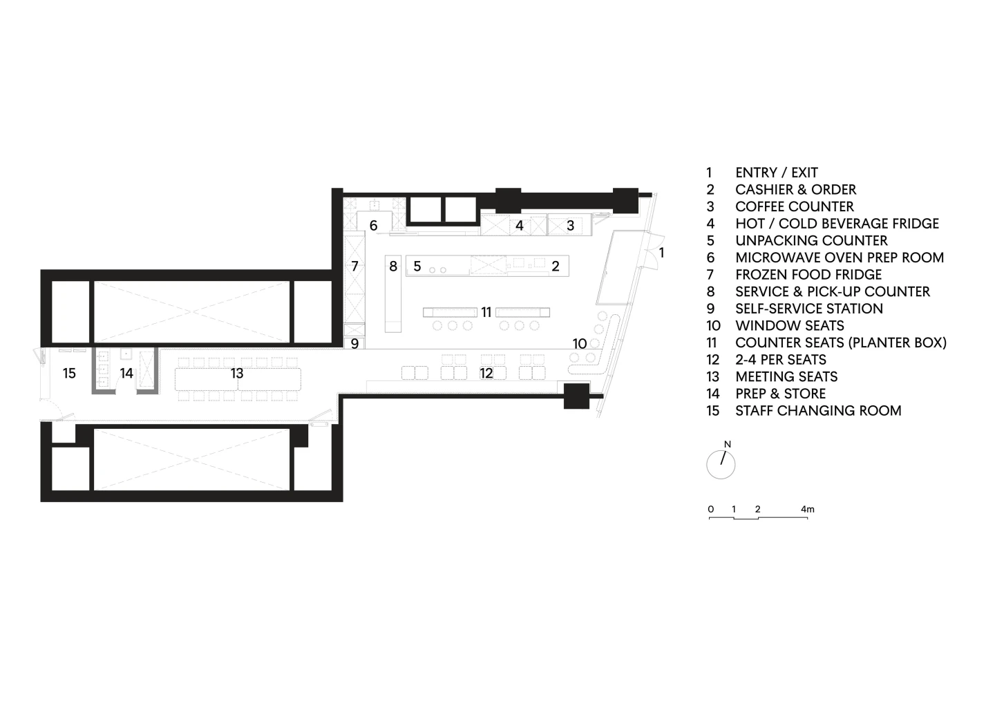
回想在大学食堂里,学生和教授们一边享用快捷和健康的餐点,一边自由的交流倾诉。Office AIO以这个带着记忆温度的场景为起点,在主空间中央,打造了一个“开放式厨房”,让顾客和产品在这其中,启动具意义的互动。

开放式厨房是以舞台搭建的思维进行布局,其背景由一系列整齐有序的定制全高不锈钢冷冻和冷藏柜组合而成,系统性地收纳餐厅日常运营所需的食物储存。在舞台的中心,Office AIO为这些常温保存的餐盒,设计了一套结构细腻却轻盈的展示吊架,配合员工流畅的动作,演绎出这场献艺的高潮。悬挑在吧台上方的巨型的灯膜箱,均匀柔和地照耀着这片区域。整体的空间规划,将所有的工作流程透明地展示在客人前:从选餐、饮品餐点预备、到摆盘出餐,是一齣体现品牌自信和规模的表演。

让上班族的“食堂”也充满魅力

用餐区域直线形地排开在“舞台”前,同时也将开放式厨房里大量的不锈钢元素,衍生到定制餐桌的设计中。不同的餐桌规格,满足不同顾客的用餐和社交需求:爱看广场里热闹景色的人们,选择坐在落地窗边的高吧台;小方桌适合简单快速地用餐习惯;两个长形餐桌则可兼具商务讨论的功能。

Office AIO以品牌餐盒的造型为灵感,定制了一系列手工立体瓷砖,为用餐环境带来了有序的节奏感和温柔的细节。悬挑出墙面的座位上,加上柔软的皮革坐垫,搭配带有细致纹理的Cesca藤编椅,区别于严谨规矩的开放式厨房,一同为此区域叠加出舒适的氛围。

两个具不同气质的区域,被一群悬浮在空中的定制吊灯牵连着。线条简约的造型,回应并扩大了整体空间设计思维所想要阐述的透明度、精准度、和系统性。

更多收起
  • 熊鱼食社
下一个 首都公寓