作品
/
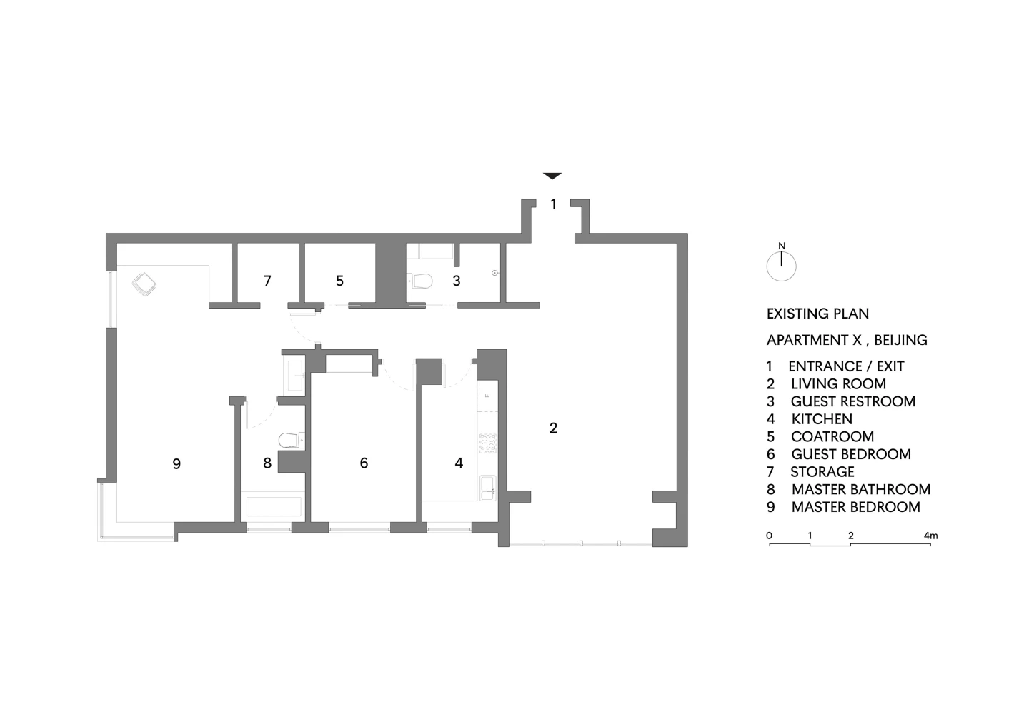
首都公寓
首都公寓
北京
Navigation
新闻
作品
工作室
联系我们
返回
首都公寓
更多
收起
下一个
Elle Cafe
Message
Email
关闭
微信
关闭