UDL 设计公司 798

重塑工业空间

北京798艺术区内一栋现存厂房被选为UDL Studios的办公室新址。成立于2012年,是由多个顶级设计工作室组成的联盟,服务于全球范围内的品牌和机构,在品牌设计、工业设计、时尚创意等领域提供设计咨询和创新解决方案。这个空间曾作为周围艺术中心的延伸展馆,依然保存着798区域浓厚工业肌理的空间语言。

光影与纵向空间关系

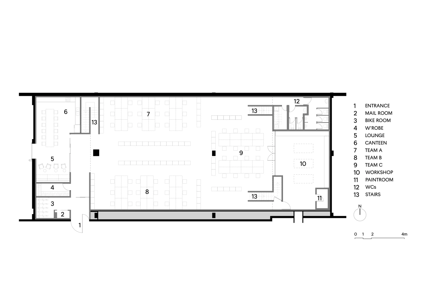
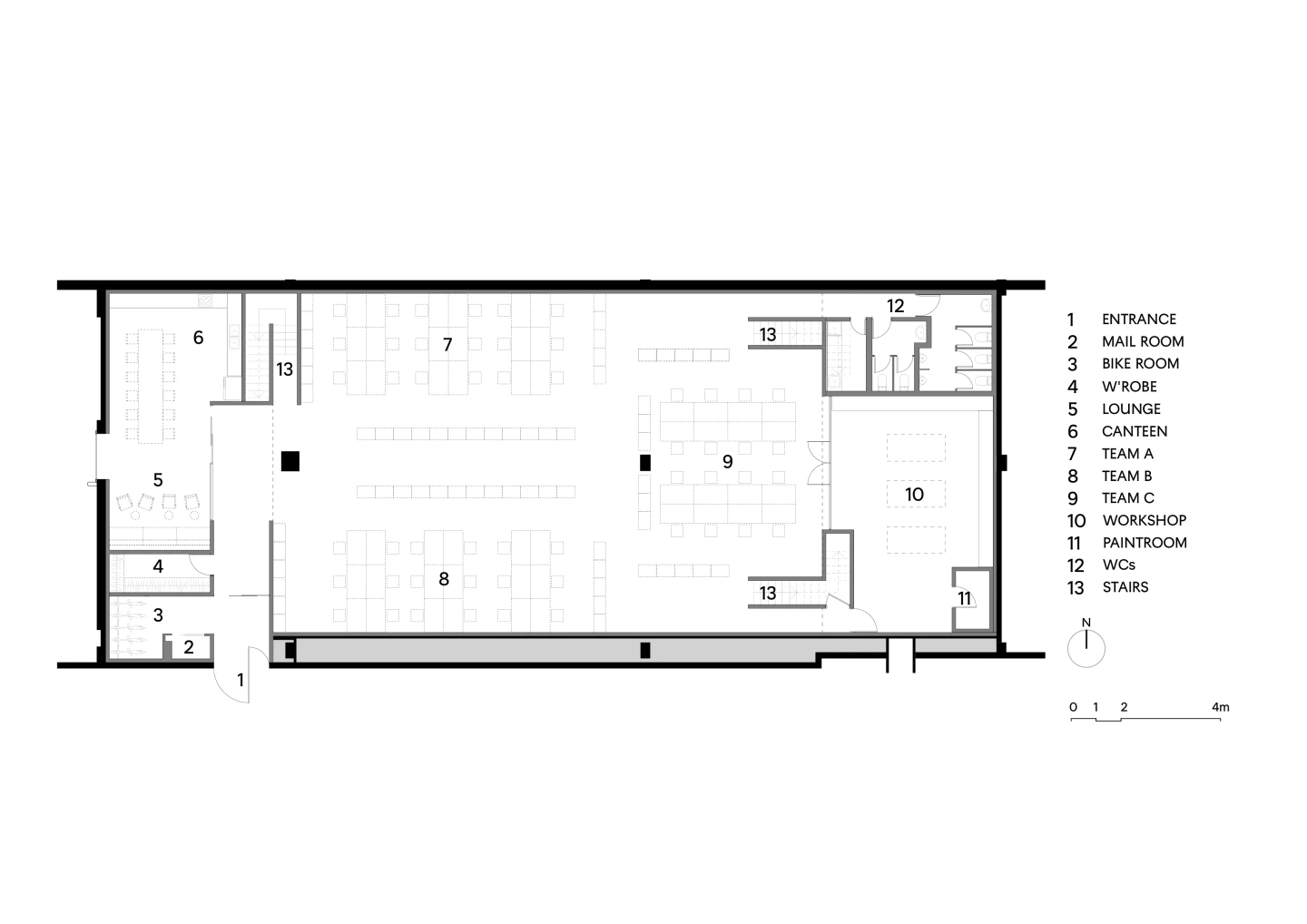
办公室占据原厂房建筑的一节,整体空间比例呈狭长的矩形(37米长、14米深),并有着标志性的双拱屋顶结构以及Y形结构。锯齿状屋顶北侧的采光玻璃窗,为室内提供不间断的柔和日光,其确立的强烈秩序感与开放性,成为空间设计最关注的元素。照明设计则选择了Ostuni 的 Tango 桌灯贯穿整个空间,均匀点亮所有的工作台面,也利用其上照功能,柔和地照亮整体空间。

摒弃了将整体分割为封闭房间的做法,在保留空间通透性的前提下,仅引入满足工作室功能所需的建筑构件。

空间设计的策略是将UDL的办公室以一个连续且开放的工作生态作为主要考量,首先整合了所有封闭功能与辅助设施空间,并以两个紧凑体量分配在空间的两端,最大化保留平面开放区域,以容纳三个合伙团队间的协作动态。

聚拢整合的空间策略

在低调的铝板外立面上,唯有一面旗帜昭示着工作室的入口。抵达的体验被整体纳入首个嵌入式空间集中体量:从旋转中轴门步后,进入UDL空间的序列:沿着连续压缩的空间动线,依次经过自行车存放区、衣帽间、兼作访客等候与聚会空间的茶歇区。 经过这一系列刻意压缩高度的入口空间后,动线豁然打开,进入全挑高的主工作区,令人充分感受公共区域到共享工作环境的渐进过渡。

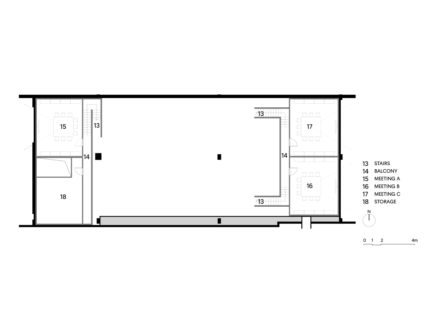
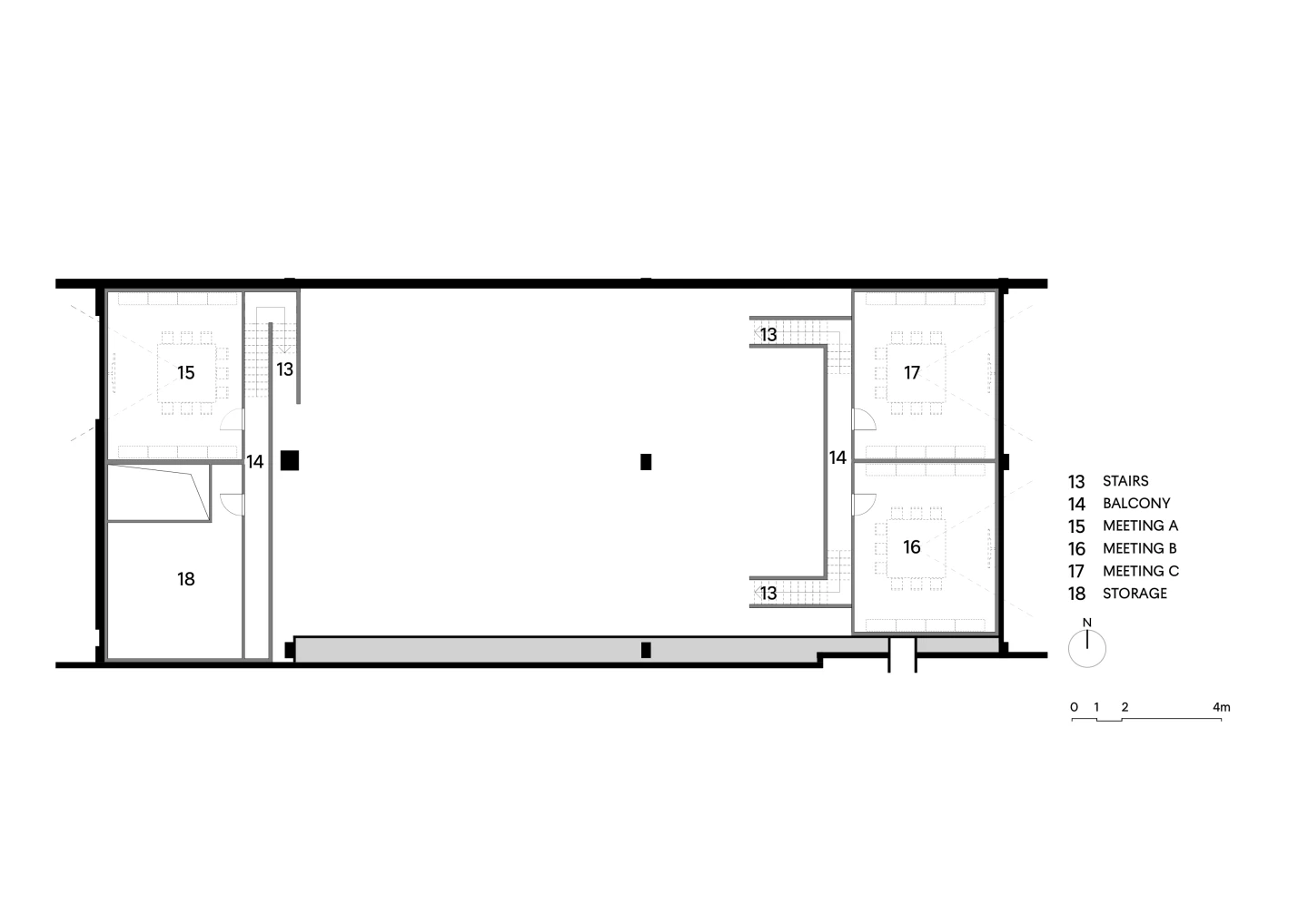
空间另一端嵌入的第二个体量内,带有通透玻璃的CNC工作坊成为视觉与功能的锚点。所有设计制作、打样、验证的环节在共享环境中始终保持可见。两个体量之上各增设了阁楼层,承载三间会议室(分别对应各团队)及档案室。这些房间整体抬高于主层,既保障了会议的私密性,也充分利用了高侧窗引入的自然光,给予沟通讨论一个柔和的背景。

开放式办公环境中的协作关系

通过将辅助功能空间压缩集中,原有工业空间的开阔的空间感得以完整地呈现给主办公区。中央轴线上的结构柱自然划分出大空间区块:两个负责品牌设计的平面团队分别占据南北两侧,延展墙面用于张贴设计稿与设计讨论过程。工业设计团队则坐落于东端,紧邻工作坊。这三个团队之间,以模块化的组合系统柜划分工作区域、保持了整体空间的开放性、支持着空间内部的动线、储物、展示、及非正式讨论功能。

设计通过直观且具逻辑性的空间布局,设计既保留了原有结构的层高、连续性、与自然采光的特色,又营造出充分的空间感——赋能一个以集体协作、思想碰撞、共享活动为核心的UDL工作室生态。

更多收起
  • UDL 设计公司 798
  • UDL 设计公司 798
下一个 The A.R.C. Collection