炭围

Office AIO 设计意喻“围绕炭火而食”的日式餐厅

在长沙市中心,一家专注于日式炭烤牛肉的餐厅:“炭围”,意喻“围绕炭火而席”。Office AIO 受托为它塑造整体空间形象,向它的食客们诠释品牌憧憬的意境,让用餐者仿佛置身于围绕炭火享用美食的画面中,创造出难忘的美食体验。

将“切肉”转化为框景的手法

餐厅在街道旁,以全长的落地玻璃相隔,好奇的行人可一眼扫视内部宽敞的用餐环境。

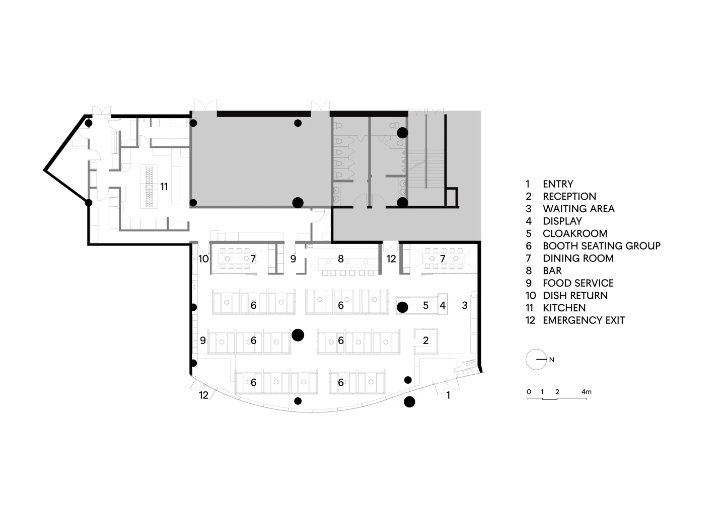
炭围内部主要由多个“体块”占据。这些体块按序横列,划分出用餐区和过道。井然的秩序感让笔直的服务过道通畅之余,也使体块内围合的卡座犹显私密。深邃的炭黑色饰面和润泽的红瓦地砖呼应着“炭”与“火”的元素,为空间带来强烈的对比,在冷酷与热烈之间营造谐和的氛围。

Office AIO将炭黑体块进一步横向剖开,恰如利刃划开刚烤好的牛肉,展现肉汁四溢的画面。这样的空间切割手法形成上下体块,框入炭火的缕缕青烟与人们的津津入食的场景,为炭围摄取热闹及熙攘的画面。

刚柔并济的材料应用

Office AIO 效仿朴实的柴房,以原木装饰用餐卡座的外部。即便涂抹成炭黑色,哑光漆仍能显露出原木的纹理。卡座的内部作则维持着木的自然美,原色的座位和台面让食客在炭炉边上的就餐体验更加和暖而温馨。

除了外而内的材质和氛围变化之外,卡座上方吊挂的体块也暗藏心思。Office AIO 选用了粗旷的凿纹板搭建了一个个独立的锥形天花。隐藏在天花顶部的光源,照亮着桌面上的美食,也在凿纹板上映出丰富而细腻的肌理。

Office AIO以干练而微妙的手法,在略具暗雅情调的空间里,打造出深入人心的用餐空间。通过巧妙的空间围合与灵活的材料运用,为炭围的品牌意境点题,让食客们沉浸在围绕炭火欢愉聚餐的场景中。

更多收起
  • 炭围
下一个 Pageone