Xiong Yu Eatery

Xiong Yu Eatery is a new Business-to-Customer food e-commerce platform incubated by CP Group. Through applying CP Group’s cutting-edge agricultural and packaging technology, Xiong Yu Eatery aims to provide a “3rd eating solution” that is convenient without compromised quality for its new generation consumers in China.

AIO Elevates the Chinese Canteen Experience for a Packaged-Food Concept Restaurant

Called 《熊鱼食社 | Xiong Yu Eatery》, with its name being a play of words inspired by a well known phrase by Mencius: “鱼与熊掌不可兼得”, closely translated to “You can’t have your cake and eat it too”, is a new brand that sells “cutting-edge” pre-cooked meals. Endorsed by its mother company - CP Groups’ exclusive and complete chain of food supply, central cooking facilities, and their patented packaging technology, making Xiong Yu Eatery’s full-flavoured boxed meals able be stored at room temperature up to 9 months, thus providing the new-age consumers “a 3rd eating solution” (the 1st and 2nd solutions being: cook your own meals - time consuming, and order food delivery - questionable food source and preparation hygiene).

The brand’s first offline experience store location was carefully placed in SOHO Wangjing, one of Beijing’s busiest commercial developments to serve their target consumer group. Xiong Yu Eatery’s brief for the space was to express its core values of providing an instant meal without compromised taste, and more importantly, forming a space that encourages social interactions and a sense of community in the bustling context.

Setting the Stage for an Fast-Food Preparation Performance

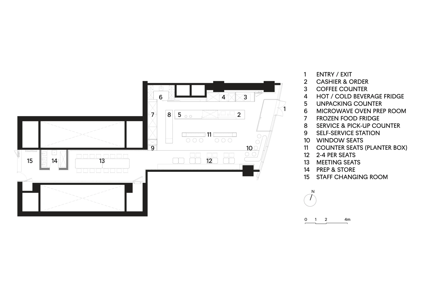
Office AIO starts out by referencing the canteen commonly seen in schools of the Chinese professionals, interpreting the nostalgic experience of going for daily quick and healthy meals amongst their peers. The design approach focused on establishing purposeful interactions between the consumers and Xiong Yu Eatery’s products by setting up an open kitchen in the centre of the spatial arrangement.

To “stage“ the Kitchen, custom-clad freezers and refrigerators used to stock all of the restaurant’s food supplies are neatly lined up and methodically positioned to correlate with the functions assigned in the two stainless steel-clad kitchen bars. A series of rigorously constructed yet airy shelves containing the boxed meals are strategically hung in the middle of this organisation, being the climax of the performance, bring forward a fluent yet dramatic impact to the act. This scene further intensified by a suspended volume of membrane lighting. The spatial arrangement allows for the fully exposed and streamlined workflow “performance”, from selection, food preparation, to collection of meals, to be celebrated and confidently observed by its customers.

Oomph to the Traditional Canteen

The seating areas are laid out in a linear fashion facing the “stage” and carry a stainless steel aesthetics from the Kitchen to the bespoke tables. Various table heights and sizes are purposed to fulfil patrons of different group sizes and social interactions: tall benches by the store facade for those who enjoy watching the ever-changing scenes in the office plaza, square tables for small gatherings with quicker turnover rates, and two sets of large tables to accommodate meetings over business meals.

In order to give the seating areas an elevated and hospitable atmosphere, the walls are tiled in customised handmade triangular tiles, introducing rhythm and details that reflect with the brand’s packaging language. Furthermore, the space is adorned with leather padded bench seats, and bent steel Cesca cane chairs adding warmth and delicacies in contrast to the austere and sterile forms in the kitchen.

The two distinct programs are tied together by an array of bespoke pendant lamps above, along with the furniture and wall surfaces, the minimal disk shaped pendant is designed to echo and exaggerate the idea of transparency, precision and order.

Read moreRead less
  • Xiong Yu Eatery
Next project Apartment X