念念行旅

触动感官和心灵的酒店

Read & Rest精品酒店置身于北京繁华忙碌的市中心内,力图在舒缓感官与诱发好奇心间取得平衡点,以此作为其倡导的高品质生活方式核心。Office AIO为酒店设计的空间,旨在引导人的心境进入一种平和悠闲的状态,为丰富和交流心智作铺垫。

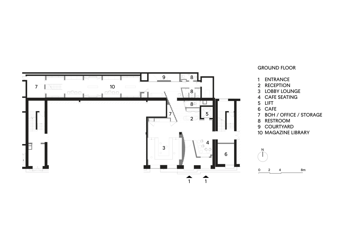
毗邻街道的入口为了隔离喧嚣,掏空入口外立面后的空间,形成两层高的中庭廊道。以此开启了一个如望远镜般变化的通路,由质朴的入口步入开敞的中庭,穿过亲密舒适的大堂,进入图书馆。其中切换的尺度及空间使客人忘却时间的流逝,像阅读乌托邦式的童话故事一样,逐渐触达开悟的精神境界。

胡同里的幽静体验

空间设计中带有中央走廊的图书馆和书房,以重复性、对称性和节奏性,塑造了一个宁静和使人专注的空间。疏散的布局、极简的空间雕饰、柔和的色调以及木材石料的自然纹理,体现了设计上贯整着个酒店克制简练感。从公共区域到所有的客房,形成了一种有助于舒缓人们感官的全方位体验。 

客房以石膏打底,采用浅色暖灰色调,增强了隐秘感,犹如一个“安静小窝”。就此反射的光线柔和缓弱,并由暖色调的黄铜和天然橡木随类赋彩。 墙身原有的大敞口窗户被保留了下来,并改装成玻璃窗,让日光洒入整个房间,为胡同里的景致定格。 每一个窗口都配宽而长的木架台,意在让人就坐放松身心,享受阅读的乐趣。凡此种种承载了客户和Office AIO忠于简约和本质的生活理念。

更多收起
  • 念念行旅
  • 念念行旅
  • 念念行旅
  • 念念行旅
下一个 Shop O