胖妹面庄 - 香饵胡同店

始创于1998年的重庆胖妹面庄,其北京分店与Office AIO合作,再现老家重庆街头就餐的体验。 设计从多名艺术家的作品中汲取灵感,以体现了重庆的物质及文化特征——起伏的都市景观和近年快速的城市化。通过层次和协调感,重现那些散布于城市山街上的路边面摊的红火气氛。此番的改造忠于面馆老板及菜肴的本源,在味觉体验之外,为新店面增添了深层的文化和空间体验感。

胖妹面庄始创于1998年,位于中国四川的重庆市,一直以提供当地正宗的麻辣重庆小面而闻名。小面是重庆饮食文化的精髓,其风味突出,却是一道十分普及和亲民的美食。2015年,胖妹来到北京开设分店,并很快成为唯一一家正宗中国西南风味的火爆面馆,常年挤满了本地食客和外地游客。客户找到OFFICE AIO的目的是重新打造品牌空间形象,在提供美味的面食之余,成为一个同时具备现代性而充满重庆特色的用餐环境。

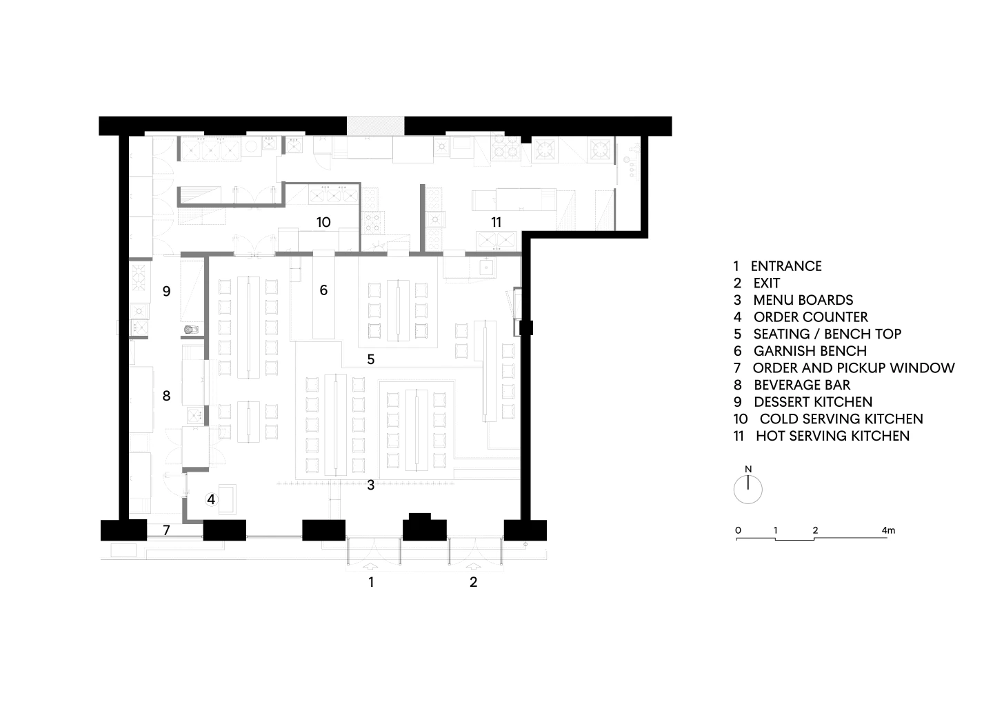
OFFICE AIO从摄影师Tim Franco、Nadav Kander和Mark Horn的作品中汲取灵感。他们的作品记录了重庆人们的日常生活,以都市和自然景观为背景,记录着这个错落有致,纵向层次丰富的城市。面馆150平方米的空间一分为三:其中,深处是横跨空间宽度的主厨房(55平方米),与之连接的是设有窗户面向街道的甜品和饮料制作区(15平方米),剩余的80平方米则作为用餐区。两个工作区和用餐区之间的内墙凿出了多个窗口,为终日繁忙的餐厅提供了极为高效和系统的工作流水线(每个座位翻台率仅为6分钟)。

胖妹面庄内部设计由众多台阶叠搭形成,采用黑灰白的三色水磨石,为整个空间内注入起伏错落的层次感。固定的桌子也以同样的水磨石现场浇制完成。为了创造在坡地城市景观中的路边面摊就餐这一特色的重庆体验,设计中再不同的高低的平台上布置桌子,特意制作成长短不一的造型,并与桌子匹配了小吃摊常用的折叠马扎。

OFFICE AIO具有预见性的重新布置了其天花板空间中现有的大量MEP管线,以供上面的楼层和一些现有的梁和柱对管道的利用。如此一来,让该方案设计发挥最大优势。为了突出原有的混凝土结构,设计中沿着结构的轮廓的设置了餐馆的霓虹灯饰,并在用餐区周围增添了落地雾膜镜子,进一步塑造切身的都市丛林和城市夜景洋溢的体验。

更多收起
  • 胖妹面庄 - 香饵胡同店
  • 胖妹面庄 - 香饵胡同店
下一个 我们电影